1 Frank Davis Street, Mississippi Mills, Ontario

$189,900

Previous Next

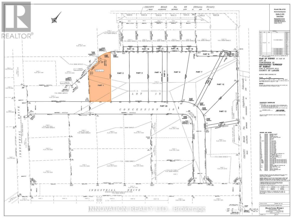
About 1 Frank Davis Street

Outstanding opportunity. Prime Business Park lots in the Friendly Town of Almonte. Located in Mississippi Mills these newly created lots range in size from approx. 1 acre to 1.48 acres & offer a blank slate to build what you need to grow your business. The lands are branded Employment Lands (Zoned E1) & are being sold by the Municipality. Almonte is the perfect town to source and attract employees to help your business move to the next level. Located on the Mississippi River, Almonte is 20 Minutes to Kanata & 35 minutes to downtown Ottawa. Time to grow? Time to become part of the Almonte Business Community. (id:6289)

Features of 1 Frank Davis Street

Listing # X12086042
Price $189,900
Bathrooms 0.00
Acres 0.00
Type Vacant Land

Community Information

Address 1 Frank Davis Street
Subdivision 911 - Almonte
City Mississippi Mills
Province Ontario
Postal Code K0A1A0

Amenities

Is Waterfront No
Has Pool No

Interior

Fireplace No
Has Basement No

Exterior

Lot Description 143.37 x 341.31 FT ; 1

Listing Details

OfficeINNOVATION REALTY LTD.

Listing Map

Request a Showing

Provide a valid email address.
When would you like to view this property?